About Us

New Project Photos

These photos were taken in late-May, early-June 2024

VIEW MORE VIEW MORE
photo of kitchen in new condo for sale near Love Field Airport Dallas

About Us

New Interior And Exterior Unit Photos

You will find on this page a recent set of photos taken from the inside and outside of one of our units (2112 Shea Rd, #102, Dallas TX 75235). Thank you to Nicole Vilchis for the link with the photos.

VIEW MORE VIEW MORE

About Us

Photos From Construction Update

Just two photos from today’s construction update:

VIEW MORE VIEW MORE
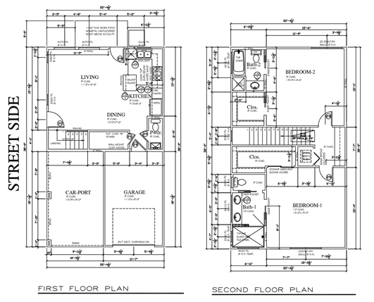
floor plans image of Shea Med Center Dallas TX condos

About Us

Floor Plans Added

We added several floor plans to our “Floor Plans” page (click the link). Please note that when you click a particular floor plan it will open up in a new window and in a PDF format.

VIEW MORE VIEW MORE

About Us

2116 Shea Update

This photo shows development at 2116 Shea Rd in Dallas (zip 75235):

VIEW MORE VIEW MORE
condominiums for sale near west love dallas tx 75235 - 2112 shea

About Us

2112 Shea Update – June 2021

Here are some update photos from our condos being developed at 2112 Shea (Dallas TX 75235):

VIEW MORE VIEW MORE
condos for sale shea med center dallas tx bree ct construction

About Us

Bree Court Update – June 13 2021

Here are some photos from the development happening at our Bree Court address for Shea.

VIEW MORE VIEW MORE
photo of kitchen in new condo for sale near Love Field Airport Dallas

About Us

About

Shea Med Center is a property of condominiums for sale near the Dallas Love Field, West Love, and Medical District area. We are located at: 2212 Shea Road, Dallas TX 75235

VIEW MORE VIEW MORE

About Us

Updates For Shea

This portion of the website will serve to offer you updates about the property.

VIEW MORE VIEW MORE